












Kauf • Grundstück • Mallorca • Campos
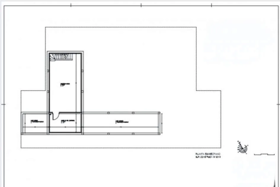
KartenansichtPlot with approved finca project in a quiet location near Campos
Objekt Nr.: 77991
Bitte füllen Sie folgende Informationen aus.
Notizen
Tragen Sie Ihre persönliche Notiz für diese Immobilie ein:Hinweis
Die E-Mail wurde erfolgreich verschicktEmpfehlen
Lage
Campos
Anbieter dieser Immobilie
Makler Informationen
C./ Conquistador 807001 Palma de Mallorca
Telefon: +34 971 698 242
USt-ID: B57299356
ÄHNLICHE ANGEBOTE
Mallorca | Ses Salines
Eine aussergewöhnliche Investitionsmöglichkeit in Ses Salines
Investition |
Kauf |
Schlafzi.: 13 |
Badezi.: 13
6.500.000 €
Merken
1 / 3
Mallorca | Porto Cristo
Neue Villa im mediterranen Stil mit Blick auf das Meer in Porto Cristo
Villa |
Miete |
Schlafzi.: 4 |
Badezi.: 3
5.000 €
Merken
2 / 3
Mallorca | Santa Catalina
Gemütliche Wohnung mit Balkon und Zentralheizung in ruhiger Lage in Palmas beliebtem Viertel Camp d´En Serralta zur Langzeitmiete
Apartment |
Miete |
Schlafzi.: 2 |
Badezi.: 1
Preis auf Anfrage
Merken
3 / 3