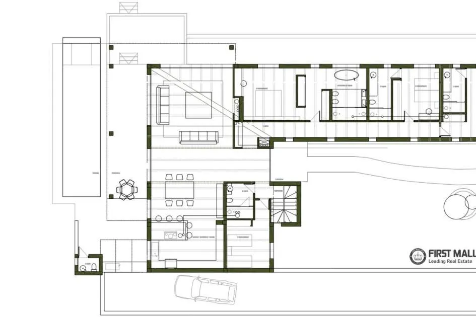
Highlights
- Swimmingpool
- Garage
Der Immobilienmarkt für Mallorca, Menorca und Ibiza.









Merken
1 / 3
Merken
2 / 3
Merken
3 / 3