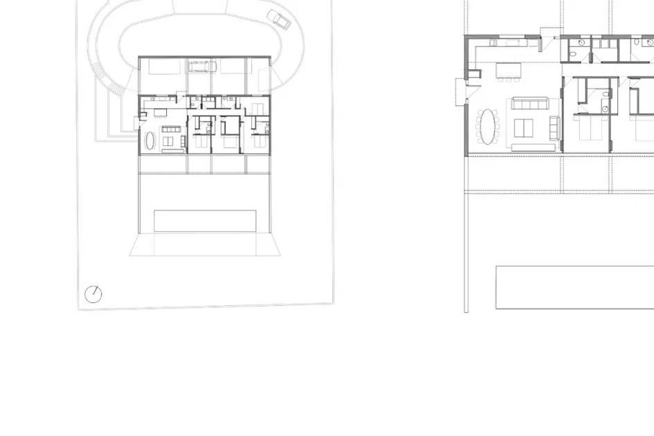
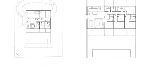
Highlights
- Landscape
- Außenstellplätze
- Swimmingpool
- Grüner Bereich und Nachbarschaft
- Open
Der Immobilienmarkt für Mallorca, Menorca und Ibiza.










 
     
                             Merken
                        Merken
                        1 / 3
 
                             Merken
                        Merken
                        2 / 3
 
                             Merken
                        Merken
                        3 / 3