Der Immobilienmarkt für Mallorca, Menorca und Ibiza.

VivaMallorca Immobilien
Anmelden Mein Konto

EN DE ES

Zurück zu den Suchergebnissen
Drucken
KaufGrundstückMallorcaSon Gual
Kartenansicht

Städtisches Baugrundstück mit genehmigtem Projekt in Son Gual II

Objekt Nr.: R28476

Bitte füllen Sie folgende Informationen aus.

* Pflichtfelder

Notizen

Tragen Sie Ihre persönliche Notiz für diese Immobilie ein:

Hinweis

Die E-Mail wurde erfolgreich verschickt

Empfehlen

498.000 €

Preis

2 m²

Grundstück

4

Schlafzi.

4

Badezi.
Merken Jetzt Anfragen

Highlights

  • Open
  • Landscape
  • Grüner Bereich und Nachbarschaft
  • Swimmingpool
  • In Golfplatznähe
  • Panoramic
  • Tiefgarage

Beschreibung

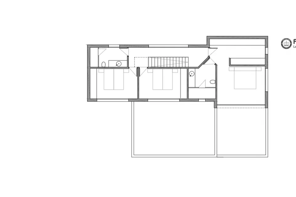
Dieses städtische Grundstück von 2.007 m² befindet sich in der Urbanisation Son Gual II und verfügt über ein genehmigtes Projekt für den Bau eines modernen Einfamilienhauses. Der Entwurf umfasst 350 m² bebaut, mit 217 m² Wohnfläche, verteilt auf zwei Etagen plus Keller, einem privaten Pool und einer großzügigen Dachterrasse mit freiem Blick auf die umliegende Natur. Das geplante Haus bietet insgesamt 4 Schlafzimmer und 5 Bäder (2 en Suite, 2 Gemeinschaftsbäder und 1 Gäste-WC). Im Erdgeschoss befinden sich ein Schlafzimmer, eine offene Küche mit Kochinsel, integriert in den Wohn-Essbereich, sowie der direkte Zugang zum Garten durch große Fensterfronten. Im Obergeschoss liegen drei Schlafzimmer, alle mit Zugang zu einer großen Terrasse. Von der 64 m² großen Dachterrasse aus genießt man freie Ausblicke auf den Wald und die Landschaft. Im Außenbereich lädt der nach Süden ausgerichtete Pool von 43 m² mit Gartenbereich zu entspannenden Momenten im Freien ein. Im Keller befinden sich eine Garage für zwei oder mehr Autos sowie Abstellfläche. Die Urbanisation Son Gual II liegt 150 Meter über dem Meeresspiegel und verfügt über Wasser, Strom, Abwasseranschluss und Telekommunikation. Der einzige Zugang erhöht die Privatsphäre und Sicherheit. Die Lage ist ideal: nur 10 Minuten zum internationalen Flughafen von Palma, 15 Minuten ins Stadtzentrum und wenige Meter vom Golfplatz Son Gual entfernt. Kontaktieren Sie unser Team von First Mallorca für weitere Informationen oder zur Vereinbarung eines Besichtigungstermins.

Ausstattungen

  • Außenstellplätze
  • Grüner Bereich und Nachbarschaft
  • In Golfplatznähe
  • Landscape
  • Open
  • Panoramic
  • Swimmingpool
  • Tiefgarage

Lage

Son Gual

nach oben

Bitte füllen Sie folgende Informationen aus.

* Pflichtfelder