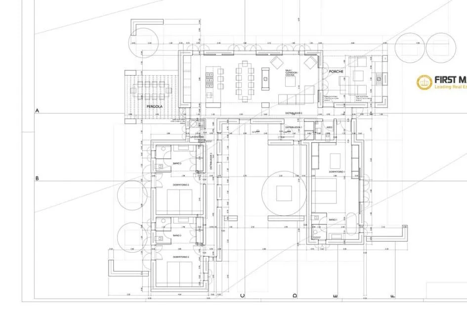
Highlights
- In Hafennähe
- Unmöbliert
- In Nähe eines Einkaufsgebietes
- Obstbäume
- In Strandnähe
- Bars und Restaurants zu Fuß erreichbar
- Automatisches Bewässerungssystem
Der Immobilienmarkt für Mallorca, Menorca und Ibiza.







Merken
1 / 3
Merken
2 / 3
Merken
3 / 3