Der Immobilienmarkt für Mallorca, Menorca und Ibiza.

VivaMallorca Immobilien
Anmelden Mein Konto

EN DE ES

Zurück zu den Suchergebnissen
Drucken
KaufHausMallorcaColonia de Sant Jordi
Kartenansicht

GROßE INVESTITIONSMÖGLICHKEIT IN SON GUAL

Objekt Nr.: 038256

Bitte füllen Sie folgende Informationen aus.

* Pflichtfelder

Notizen

Tragen Sie Ihre persönliche Notiz für diese Immobilie ein:

Hinweis

Die E-Mail wurde erfolgreich verschickt

Empfehlen

1.200.000 €

Preis

144 m²

Wohnfläche

4

Schlafzi.

3

Badezi.
Merken Jetzt Anfragen

Highlights

  • Klimaanlage
  • Garage
  • Garten
  • Terrasse
  • Swimmingpool
  • Soleado
  • Wäscheservice

Beschreibung

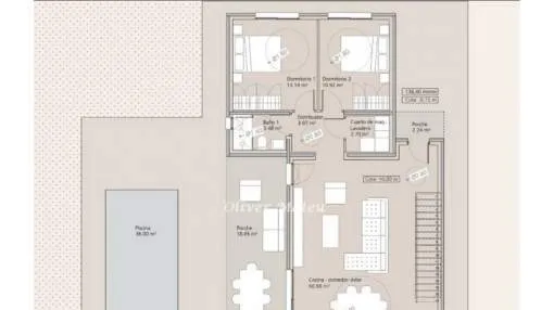
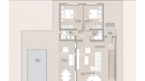
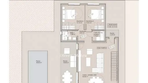
Wir präsentieren eine exklusive Investitionsmöglichkeit in einem der Wohngebiete mit großem Potenzial in Palma de Mallorca: Son Gual. Dieses zeitgenössische Chalet, derzeit zu 80 % fertiggestellt, kombiniert moderne Architektur, natürliche Umgebung und ein hohes Wertsteigerungspotenzial und gilt als eine der besten Optionen auf dem Neubaumarkt. Privilegierte Lage: Eingebettet in die ruhige und gehobene Gegend von Son Gual, nur wenige Minuten vom renommierten Golf Son Gual Mallorca entfernt, bietet diese Umgebung Privatsphäre, Sicherheit und schnelle Anbindung an das Zentrum von Palma (18 Autominuten). Ein perfektes Gleichgewicht zwischen exklusiver Wohnqualität und städtischer Anbindung. Design und Aufteilung: ·Gebäudefläche von 170 m² auf zwei Ebenen verteilt. ·4 Schlafzimmer und 3 vollständige Badezimmer, für maximalen Komfort konzipiert. ·Geräumiges Wohn- und Esszimmer mit integrierter 60 m² großer Küche, ideal für modernes Leben und Familienunterhaltung. ·Große Außenbereiche mit privatem Pool und Gartenbereich, um das mediterrane Klima das ganze Jahr über zu genießen. Wettbewerbsvorteil für Investoren: Mit 80 % der Bauarbeiten abgeschlossen ermöglicht der Erwerb dieser Immobilie die Anpassung von Oberflächen, Kosteneffizienz und Maximierung der Rentabilität. Die Gegend von Son Gual hat ein stetiges Wachstum bei Preisen und Nachfrage erlebt und hebt sich von anderen nahegelegenen Wohngebieten durch ihr hervorragendes Preis-Leistungs-Verhältnis und ihr hohes Wertsteigerungspotenzial hervor. Eine kluge Investition im Premiummarkt von Mallorca. Sichern Sie sich heute Ihre Position in einer der vielversprechendsten Lagen der Insel und machen Sie diese Immobilie zu einem Asset mit hoher zukünftiger Rentabilität.

Ausstattungen

  • Einbaukleiderschrank
  • Garage
  • Garten
  • Klimaanlage
  • Soleado
  • Swimmingpool
  • Terrasse
  • Wäscheservice

Lage

Colonia de Sant Jordi

ÄHNLICHE ANGEBOTE

nach oben

Bitte füllen Sie folgende Informationen aus.

* Pflichtfelder